淀川区三国本町3丁目 売土地
■淀川区三国本町3丁目 売土地
■コンビニ・スーパー・駅等、周辺商業施設多数の好立地!
■有効土地面積50坪越!南向きで日当たりも良好♪
■最寄駅まで徒歩3分!通勤・通学も楽々です!
現地案内会
- ※事前に必ずお問い合わせください
- ~現地案内会開催中~
ご興味のある方はぜひお早めにお問い合わせください!
-
情報の見方
ローンシミュレーションこの物件を購入した場合の、月々の支払い価格の一例です。借り入れを保証するものではございません。
- 返済期間
-
- 金利
-
- ボーナス時の増額(1回分)
-
- 借入金額:
-
- 頭金:
-

- 毎月の返済額:
(※元利均等方式 金利5.00%まで ※返済年数5~50年まで入力できます)
(※ボーナスは年2回で計算しています。1000万円まで入力できます)
(※物件購入時、その他諸費用が発生する場合がございます)
物件概要
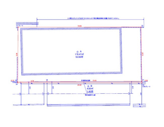
【売地】 物件番号:98878536 情報更新日:2025年12月02日 次回更新予定日:2025年12月16日所在地 大阪府大阪市淀川区三国本町3丁目 交通 価格 1億2,400万円 土地の敷金/保証金 -/- 借地料/借地期間 -/- 土地面積(坪数) 226.74㎡(68.58坪) 坪単価 180.81万円 私道負担面積/セットバック -/要 高圧線下面積 - 傾斜地部分面積 - 路地状敷地 - 土地権利 所有権 接道状況 一方(南 公道 3.6m 間口 20.0m) 都市計画 市街化区域 用途地域 第一種住居 建築条件 無 地目/地勢 宅地/- 建ぺい率 80% 容積率 200% 総区画数 - 販売区画数 - 国土法届出要否 不要 その他の法令上の制限 準防火地域 取引態様 売主 現況 古家有 引渡時期 相談 引渡条件 - 最適用途 - 物件番号 98878536 取引条件の有効期限 2025年12月16日 設備条件 - 陽当り良好
- 現地案内会
- 都市ガス
- 公営水道
- 公共下水
備考 ■更地渡し
■有効面積 178.47㎡
※272番2(59.90㎡)は道路部分の為、有効面積には含まれません。取扱会社 - 水都株式会社
- 大阪府大阪市福島区福島5丁目7-24
- TEL:0120-124-310
- 大阪府知事 (3) 第56851号
建築工事業 大阪府知事許可(般-2)第153525号 - 社団法人全日本不動産協会
社団法人不動産保証協会
社団法人近畿地区不動産公正取引協議会
※地図上に表示される物件の位置は付近住所に所在することを表すものであり、実際の物件所在地とは異なる場合がございます。
物件お問い合わせ
































